上海辛丞--防排烟新规后的项目现场图片(一)
2020/7/7 10:24:27 点击:
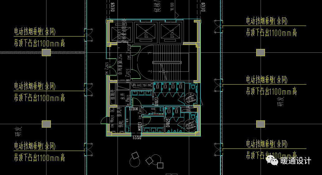
1、敞开楼梯间与走道之间的电动挡烟垂壁
2、储烟仓内有部分门洞,设置电动挡烟垂壁
3、排烟天窗与周边开口之间的防火措施
4、教室内的高位窗设置手动开启装置
5、走道处的挡烟垂壁,活动式和固定式
6、风雨操场排烟天窗及手动开启装置
转自互联网,如有侵权请联系删除。
- 上一篇:上海辛丞--防排烟新规后的项目现场图片(二) 2020/7/8
- 下一篇:防火阀作用说明 2019/1/4
