上海辛丞--暖通大样图汇总
2020/6/2 10:11:40 点击:
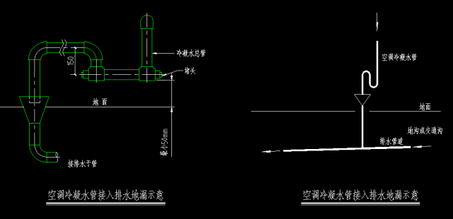
暖通大样图汇总
转自互联网,如有侵权请联系删除!
- 上一篇:上海辛丞--空调系统设计失误总结 2020/6/4
- 下一篇:防火阀作用说明 2019/1/4
