上海辛丞--管线支吊架这样做,提升安装质量!
随着机电安装工程管线的越来越 复杂, 传统的管线支吊架问题日益凸显,诸如: 成 排支吊架形式不一致、支吊架设置位置不合理……
支吊架形式不一致
支吊架设置位置凌乱
支吊架形式不一致、安装朝向不同
支吊架形式不一致、设置位置凌乱
管线综合支吊架的出现解决了这一问题,将给排水、暖通、电气、消防等机电安装各专业的支吊架综合在一起,统筹规划设计,整合成一个统一的支吊架系统,有利于节约成本、加快施工进度、提高观感质量,并最大限度的节省空间。
那么,管线综合支吊架该怎么做呢?以下实例是山东鸿顺集团在创优工程中,利用BIM技术优化设计,实现了复杂管线综合支吊架的高质量施工,特分享给大家参考借鉴,以提升机电管线安装水平。
本工程机电安装作业量大,有通风空调系统、给排水系统、电气系统,其中通风空调系统包括集中式空调系统、恒温恒湿空调系统、多联机空调系统、送排风及防排烟系统及空调水系统,给排水系统包括生活给水系统、太阳能和热泵热水系统、污水排水系统、虹吸雨水排水系统、消火栓给水系统、自动喷淋给水系统、高压细水雾灭火系统及气体灭火系统等多个专业,管道种类多、规格大,管道布局复杂、吊顶内安装布置可用空间狭窄,施工难度大。
管道安装工程一览表
首先,利用MagiCAD软件进行 综合支吊架模型选型及校核计算 ,并绘制加工详图。
? 综合支吊架模型选型及校核计算
1、确定管线排布原则:有压管道让无压管道;低压管道让高压管道;单管让排管;小管让大管;水管让风管;电气管线避让冷热水管道;强弱电分设;附件少的管道让附件多的管道。
2、利用软件对综合排布后的建筑机电安装管线进行碰撞检测。
碰撞检测结果0个碰撞点
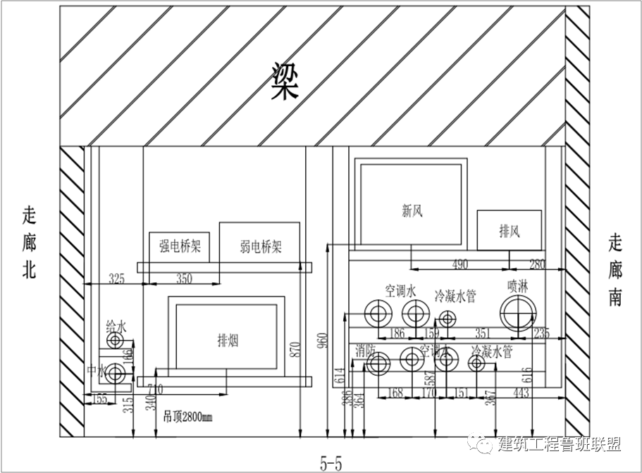
3、根据综合管线布置图,确定综合支架位置,通过软件“提取剖面”功能生成布置支吊架的管道剖面图。
生成布置管道支吊架的管道剖面图
4、根据剖面图从软件中选择合适的支吊架模型(如选双层吊架)。
选择支吊架模型
5、运用软件进行支吊架横担、吊杆型材规格及尺寸参数设置(如下图横担、吊杆均选L50×5角钢,下层横担高度429mm,横担长度649mm,吊杆高度1769mm等)。
选择横担及吊杆的规格
综合支吊架参数设置完成后,根据支吊架上布置的管道类型、管径大小及支吊架间距等(根据管线布置情况,如本工程走廊内综合支吊架间距3.0m),进行综合支吊架荷载校核计算,检验其是否在安全范围内。
计算校核综合支吊架荷载
若校核后不满足要求,应重新选择支吊架横担及吊杆进行校核,直至满足要求为止。
校核计算满足要求
? 绘制综合支吊架施工图
1、在建筑平面图上对每个综合支吊架位置进行编号标注固定。
综合支吊架位置及编号
2、根据综合管线剖面图及Magicad软件选择确定的综合支吊架模型,绘制出每个综合支吊架施工图。
综合管线剖面例图
管线综合支吊架施工例图
通过利用MagiCAD软件进行综合支吊架三维模型预制作,绘制出了每个综合支吊架施工图,空间布局合理规范,并可通过三维直观地查看管线的最终完成效果,为施工提供了便利及依据。
Magicad软件预制支吊架三维图
然后,根据软件优化设计审核后的图纸,进行支吊架加工制作细部做法技术交底,依据综合支吊架详图进行综合支吊架制作。
1、下料:依据综合支吊架详图,选用合格的型钢加工制作,采用切割机下料,型钢切割面打磨光滑,端部倒圆弧角,倒角半径为型钢端面边长的1/3-1/2,支架拐角处采用45°拼接。
切割机下料
型钢支架加工示意图
2、钻孔:根据综合支吊架管道安装位置在支吊架横担上用台钻钻螺栓孔,孔径为管卡螺栓直径+2mm。
台钻钻螺栓孔
3、焊接:拼接缝采用焊接,焊缝应饱满,全长满焊,焊接后焊渣清理干净,打磨平滑,焊接完根据支吊架编号位置挂上相应的标示牌。
根据编号挂标识牌
4、除锈喷漆:综合支吊架整体除锈,除锈后将综合支吊架整体摆放喷两遍防锈漆,待漆干后再喷两遍面漆,油漆应均匀、光亮,支架应规范放置。
综合支吊架喷漆后成品图
通过上述措施实施后,管线支吊架加工制作精细,标准一致。管线布置层次分明,避免了管线之间的交叉作业,观感效果良好,保证了施工质量。
综合支吊架安装效果图
转自互联网,如有侵权请联系删除。
- 上一篇:没有啦
- 下一篇:防火阀作用说明 2019/1/4
